Chalet La Luge was designed specifically as a catered chalet, with 6 en-suite bedrooms, sleeping up to 12. Details and floor plans below.
The chalet is laid out over 3 floors with underfloor heating throughout:
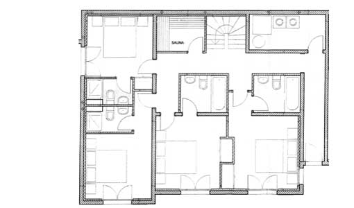
Ground Floor –
Entrance hall – bench, shelving for helmets, gloves etc, coat hooks, all running the length of the hallway. Ski boots and outdoor shoes can be stored here, with the underfloor heating they dry perfectly, however we also have a warm air boot dryer in the garage, along with ski & board storage.
Bedroom 1 ‘Isérables’ – Superking double bed or twin beds. 2 Bedside tables and lights, USB hubs and sockets. Built in cupboard with hanging rail and shelving. Hairdryer. UK and European adapters. Chest of drawers. Full length mirror. Marble topped vanity unit. Chair. Double glass doors to garden.
Ensuite bathroom 1 – Full size bath, quality shower over, glass panel. WC. Wash hand basin. Heated mirror. Heated towel rail.
Bedroom 2 ‘Prarion’ – Superking double bed or twin beds. 2 Bedside tables and lights, USB hubs and sockets. Built in cupboard with hanging rail and shelving. Hairdryer. UK and European adapters. Chest of drawers. Full length mirror. Antique wicker upholstered chair. Double glass doors to garden.
Ensuite bathroom 2 – Full size bath, quality shower over, glass panel. WC. Wash hand basin. Heated mirror. Heated towel rail.
Bedroom 3 ‘Le Fou’ – Superking double bed or twin beds &/or optional bunk beds, to sleep up to 4 guests. 2 Bedside tables and lights, USB hubs and sockets. Cupboard with hanging rail and shelving, mirror door. Hairdryer. UK and European adapters. Chest of drawers. Double glass doors to garden.
Ensuite bathroom 3 – Large shower cubicle, glass panel. WC. Wash hand basin. Heated mirror. Heated towel rail.
Bedroom 4 ‘Valon d’Arbi’ – Superking double bed or twin beds &/or optional bunk beds, to sleep up to 4 guests. 2 Bedside tables and lights, USB hubs and sockets. Built in cupboard with hanging rail and shelving. Full length mirror. Hairdryer. UK and European adapters. Vanity unit with drawers and shelves. Double glass doors to garden.
Ensuite bathroom 4 – Large shower cubicle, glass panel. WC. Wash hand basin. Heated mirror. Heated towel rail.
- Lovely Egyptian cotton bedding and thick fluffy towels come as standard.
- Guests are also provided with bathrobes.
Sauna – L-shaped benches on 2 levels, for up to 8 persons. Hooks for bathrobes.

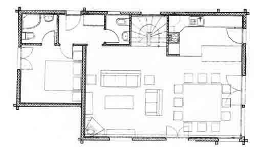
First Floor –
Living space – is open plan, with a double height ceiling, showing-off the stunning woodwork, huge views from the windows and glass doors, a spacious area in which to relax in the squashy leather sofas in front of the log fire. TV screen, excellent sound system: music can be streamed from your phone or tablet.
Dining area – Meals are served around the elegant, large square table, allowing everyone plenty of elbow room.
Kitchen – Open to the dining and living areas. We request that guests do not come into the kitchen as we have to comply with health & hygiene laws.
Honesty bar – fridge stocked with beers, wines, soft drinks. Please note your drinks in the book provided.
Tea and Coffee – please help yourself to tea, fruit & herbal infusions and coffee throughout the day. Immediate boiling water and cold water from the dedicated tap. Squash/sirops also available. No charge.
- Access via the glass doors to the huge terrace and hot tub. In order to reduce our carbon footprint, we no longer supply single use slippers from China, please bring flip flops, crocs, spa sandals to access the jacuzzi.
Cloakroom – with WC and wash hand basin.
Bedroom 5 ‘Lac des Vaux’ – Superking double bed or twin beds. 2 Bedside tables and lights, USB hubs and sockets. Cupboard with hanging rail and shelving, mirror door. Additional wall mirror. Hairdryer. UK and European adapters. Vanity unit with drawers. Double glass doors to terrace.
Ensuite bathroom 5 – Large curved shower cubicle, glass panel. WC. Wash hand basin. Heated mirror. Heated towel rail.

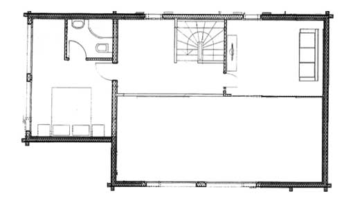
Second Floor –
Mezzanine – Open to the living space below. Desk and cable internet access. Bookshelf and games. Tripod binoculars.
Bedroom 6 ‘Mont Gélé’ – Superking double bed or twin beds. 2 Bedside tables and lights, USB hubs and sockets. Cupboard with hanging rail, shelving and drawers, mirror door. Hairdryer. UK and European adapters. Vanity unit with drawers and shelving. Antique chair. Enormous triangular picture windows. Square tilt & turn window.
Ensuite bathroom 6 – Large curved shower cubicle, glass panel. WC. Wash hand basin. Heated mirror. Heated towel rail.
Cinema/TV room – big soft beanbags, black out blind, a 55″ Smart TV – log on to your Netflix account, etc, UK & international cable channels, DVD player and film library, Wii with balance board.

Outside –
Jacuzzi – situated on the terrace just a few steps from the chalet. Magnificent views really add to the magic! Available for use after your day on the mountain, what could be a better way to restore some vigour to those aching muscles? In order to reduce our carbon footprint, we no longer supply single use slippers from China, please bring flip flops, crocs, spa sandals to access the jacuzzi.
Boules piste – play a match of petanque in the summer sunshine.
Deck chairs and sun loungers – relax on the terrace with a book and drink in those views!
Dining table – ideal for our summer BBQs! Whenever possible breakfast is served outside in the summer months.


You must be logged in to post a comment.